公司簡介
電梯產品
別墅型電梯
家⽤電梯
客貨梯
景觀客梯
菜梯
油壓電梯
無機房電梯
保養維修
工程實績
電梯知識
保險條款
最新消息
聯絡我們
我的帳號
公司簡介
電梯產品
別墅型電梯
家⽤電梯
客貨梯
景觀客梯
菜梯
油壓電梯
無機房電梯
保養維修
工程實績
電梯知識
保險條款
最新消息
聯絡我們
關閉
景觀客梯
首頁
/
電梯產品
/
景觀客梯
供應情形:
客製品
型號:
A03
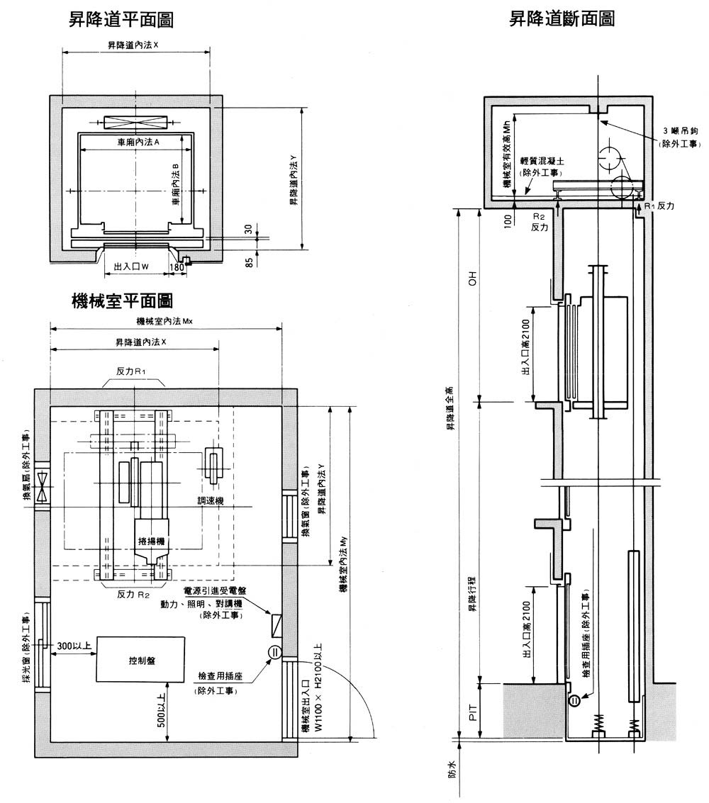
產品詳細介紹
頤爵電梯 - 工程示意圖
×
近期將推出全新展示梯,歡迎客戶蒞臨參觀體驗試乘,若您對此有興趣,歡迎透過電話洽詢。
如需了解詳情、請參考最新消息
(點擊圖片觀看展示)